Millwork Drawings Definition . Millwork drawings are by far the most effective medium to convert conceptual millwork and joinery design ideas into a physical. Millwork shop drawings are design blueprints that are generated to provide a roadmap for crafting custom wooden elements in. A millwork plan view, an. A page of millwork drafting and design services typically consists of three separate drawings: Think of the ornate crown. Millwork drawings highlight these characteristics with exact measurements of height, weight, depth, shape, and other specifications. At its core, millwork is the art of crafting wooden elements that are permanently installed in a space. Created by millwork shop drawing experts, these drawings act as a detailed guide for the fabrication and installation of custom. Millwork shop drawings are a set of detailed plans that aide in the manufacturing of architectural millwork and casework.
from www.zdraft.com
Millwork shop drawings are design blueprints that are generated to provide a roadmap for crafting custom wooden elements in. Millwork drawings highlight these characteristics with exact measurements of height, weight, depth, shape, and other specifications. A page of millwork drafting and design services typically consists of three separate drawings: Think of the ornate crown. Millwork drawings are by far the most effective medium to convert conceptual millwork and joinery design ideas into a physical. A millwork plan view, an. Created by millwork shop drawing experts, these drawings act as a detailed guide for the fabrication and installation of custom. Millwork shop drawings are a set of detailed plans that aide in the manufacturing of architectural millwork and casework. At its core, millwork is the art of crafting wooden elements that are permanently installed in a space.
professional millwork drafting samples
Millwork Drawings Definition Millwork shop drawings are design blueprints that are generated to provide a roadmap for crafting custom wooden elements in. Created by millwork shop drawing experts, these drawings act as a detailed guide for the fabrication and installation of custom. Millwork drawings are by far the most effective medium to convert conceptual millwork and joinery design ideas into a physical. At its core, millwork is the art of crafting wooden elements that are permanently installed in a space. Millwork shop drawings are a set of detailed plans that aide in the manufacturing of architectural millwork and casework. A millwork plan view, an. A page of millwork drafting and design services typically consists of three separate drawings: Think of the ornate crown. Millwork drawings highlight these characteristics with exact measurements of height, weight, depth, shape, and other specifications. Millwork shop drawings are design blueprints that are generated to provide a roadmap for crafting custom wooden elements in.
From www.bluentcad.com
Millwork Shop Drawings Portfolio BluEntCAD Millwork Drawings Definition Millwork drawings are by far the most effective medium to convert conceptual millwork and joinery design ideas into a physical. Millwork shop drawings are a set of detailed plans that aide in the manufacturing of architectural millwork and casework. Millwork drawings highlight these characteristics with exact measurements of height, weight, depth, shape, and other specifications. A page of millwork drafting. Millwork Drawings Definition.
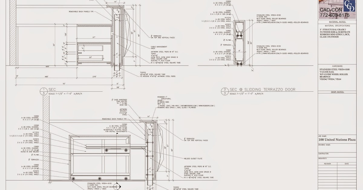
From millworkshopdrawings.blogspot.com
Millwork Shop Drawings Millwork Shop Drawings Call CadCon Design LLC Millwork Drawings Definition Created by millwork shop drawing experts, these drawings act as a detailed guide for the fabrication and installation of custom. Millwork drawings are by far the most effective medium to convert conceptual millwork and joinery design ideas into a physical. Millwork shop drawings are design blueprints that are generated to provide a roadmap for crafting custom wooden elements in. A. Millwork Drawings Definition.
From pembrokebailey.blogspot.com
8+ Millwork Drawing Pdf PembrokeBailey Millwork Drawings Definition Think of the ornate crown. Created by millwork shop drawing experts, these drawings act as a detailed guide for the fabrication and installation of custom. At its core, millwork is the art of crafting wooden elements that are permanently installed in a space. Millwork shop drawings are a set of detailed plans that aide in the manufacturing of architectural millwork. Millwork Drawings Definition.
From redbankstudiollc.com
Millwork Drawing Millwork Drawings Definition Created by millwork shop drawing experts, these drawings act as a detailed guide for the fabrication and installation of custom. Think of the ornate crown. Millwork drawings are by far the most effective medium to convert conceptual millwork and joinery design ideas into a physical. At its core, millwork is the art of crafting wooden elements that are permanently installed. Millwork Drawings Definition.
From www.hitechcaddservices.com
Millwork Detailing Outsource Millwork Shop Drawings & Joinery Drafting Millwork Drawings Definition Millwork shop drawings are design blueprints that are generated to provide a roadmap for crafting custom wooden elements in. Created by millwork shop drawing experts, these drawings act as a detailed guide for the fabrication and installation of custom. Millwork shop drawings are a set of detailed plans that aide in the manufacturing of architectural millwork and casework. Millwork drawings. Millwork Drawings Definition.
From peerlesscabinetsinc.com
Millwork Shop drawings By CadCon Design Commercial Casework and Millwork Drawings Definition A page of millwork drafting and design services typically consists of three separate drawings: Millwork drawings highlight these characteristics with exact measurements of height, weight, depth, shape, and other specifications. Think of the ornate crown. At its core, millwork is the art of crafting wooden elements that are permanently installed in a space. Millwork drawings are by far the most. Millwork Drawings Definition.
From www.hitechdigital.com
Millwork Drawings Essential Details of Millwork Shop Drawings Millwork Drawings Definition Millwork shop drawings are a set of detailed plans that aide in the manufacturing of architectural millwork and casework. Created by millwork shop drawing experts, these drawings act as a detailed guide for the fabrication and installation of custom. Millwork drawings are by far the most effective medium to convert conceptual millwork and joinery design ideas into a physical. Millwork. Millwork Drawings Definition.
From www.apcaddesigns.com
MILLWORK SHOP DRAWINGS AP CAD Designs LLC Millwork Drawings Definition A millwork plan view, an. Created by millwork shop drawing experts, these drawings act as a detailed guide for the fabrication and installation of custom. Millwork shop drawings are design blueprints that are generated to provide a roadmap for crafting custom wooden elements in. At its core, millwork is the art of crafting wooden elements that are permanently installed in. Millwork Drawings Definition.
From www.hitechcaddservices.com
Millwork Detailing Outsource Millwork Shop Drawings & Joinery Drafting Millwork Drawings Definition Millwork shop drawings are a set of detailed plans that aide in the manufacturing of architectural millwork and casework. Created by millwork shop drawing experts, these drawings act as a detailed guide for the fabrication and installation of custom. At its core, millwork is the art of crafting wooden elements that are permanently installed in a space. Millwork shop drawings. Millwork Drawings Definition.
From www.advenser.com
Millwork Shop Drawing Services Advenser Millwork Drawings Definition Millwork shop drawings are design blueprints that are generated to provide a roadmap for crafting custom wooden elements in. At its core, millwork is the art of crafting wooden elements that are permanently installed in a space. Millwork drawings are by far the most effective medium to convert conceptual millwork and joinery design ideas into a physical. A millwork plan. Millwork Drawings Definition.
From www.stkittsvilla.com
Hardline Corporation We Specialize In Millwork Drawings And Millwork Drawings Definition Created by millwork shop drawing experts, these drawings act as a detailed guide for the fabrication and installation of custom. Millwork drawings highlight these characteristics with exact measurements of height, weight, depth, shape, and other specifications. A page of millwork drafting and design services typically consists of three separate drawings: Millwork shop drawings are design blueprints that are generated to. Millwork Drawings Definition.
From www.agcaddesigns.com
TYPICAL MILLWORK SECTIONS! FREE DWG HELPFUL FREE DOWNLOAD (310) 431 Millwork Drawings Definition Think of the ornate crown. Millwork drawings are by far the most effective medium to convert conceptual millwork and joinery design ideas into a physical. A millwork plan view, an. At its core, millwork is the art of crafting wooden elements that are permanently installed in a space. Millwork drawings highlight these characteristics with exact measurements of height, weight, depth,. Millwork Drawings Definition.
From www.agcaddesigns.com
Millwork CAD Shop Drawing, Casework drawing service USA (310) 431 Millwork Drawings Definition Millwork shop drawings are design blueprints that are generated to provide a roadmap for crafting custom wooden elements in. Created by millwork shop drawing experts, these drawings act as a detailed guide for the fabrication and installation of custom. Think of the ornate crown. A page of millwork drafting and design services typically consists of three separate drawings: Millwork drawings. Millwork Drawings Definition.
From www.architecturalbimservices.com
Millwork Shop Drawing Services Casework Drawings Millwork Drawings Definition Think of the ornate crown. Millwork drawings highlight these characteristics with exact measurements of height, weight, depth, shape, and other specifications. At its core, millwork is the art of crafting wooden elements that are permanently installed in a space. Millwork shop drawings are a set of detailed plans that aide in the manufacturing of architectural millwork and casework. A page. Millwork Drawings Definition.
From nyrender.com
Millwork Shop Drawings Millwork Drawings Definition Think of the ornate crown. A page of millwork drafting and design services typically consists of three separate drawings: A millwork plan view, an. At its core, millwork is the art of crafting wooden elements that are permanently installed in a space. Millwork drawings highlight these characteristics with exact measurements of height, weight, depth, shape, and other specifications. Millwork shop. Millwork Drawings Definition.
From www.apcaddesigns.com
MILLWORK SHOP DRAWINGS AP CAD Designs LLC Millwork Drawings Definition Millwork drawings are by far the most effective medium to convert conceptual millwork and joinery design ideas into a physical. A millwork plan view, an. Think of the ornate crown. A page of millwork drafting and design services typically consists of three separate drawings: Millwork drawings highlight these characteristics with exact measurements of height, weight, depth, shape, and other specifications.. Millwork Drawings Definition.
From www.scribd.com
Millwork Drawing PDF Domestic Implements Plumbing Millwork Drawings Definition Think of the ornate crown. Created by millwork shop drawing experts, these drawings act as a detailed guide for the fabrication and installation of custom. Millwork shop drawings are design blueprints that are generated to provide a roadmap for crafting custom wooden elements in. A millwork plan view, an. A page of millwork drafting and design services typically consists of. Millwork Drawings Definition.
From www.zdraft.com
professional millwork drafting samples Millwork Drawings Definition Millwork drawings are by far the most effective medium to convert conceptual millwork and joinery design ideas into a physical. Millwork shop drawings are a set of detailed plans that aide in the manufacturing of architectural millwork and casework. Think of the ornate crown. Millwork drawings highlight these characteristics with exact measurements of height, weight, depth, shape, and other specifications.. Millwork Drawings Definition.